
A máquina de secagem por evaporação instantânea é um equipamento novo e de alta eficiência de secagem de fluidos, a qual é pesquisada e desenvolvida com o propósito de reposição de baixa eficiência e alto consumo estático utilizado anteriormente. Nós temos usado as características de secagem de fluidos comuns como a secagem à vapor, processo de desenvolvimento e criamos uma máquina de secagem de evaporação instantânea a qual é muito mais avançada.
Princípio de operação da máquina de secagem por evaporação instantânea
O ar quente entra na câmara de mistura, esmagamento e secagem a partir do fundo da máquina de secagem por evaporação instantânea em alta velocidade. Ela exerce um forte processo de corte, sopro, flutuação e efeito de rotação aos materiais. Assim, a matéria prima é granulada através de centrifugação, corte, impacto e um efeito de fricção, isso aumenta o processo de troca de calor. No fundo da máquina de secagem por evaporação instantânea, o amplo grânulo úmido é então esmagado sob a ação de um misturador. Quando o grânulo pequeno com menos umidade é elevado por um vapor de ar giratório, a secagem é então finalizada. Esse processo bi-fásico permite uma ampla e rápida capacidade de secagem.
Esboço de posicionamento
| Tipo | (A) Altura (mm) | (B) Comprimento (mm) | (C ) Largura (mm) |
| XSG4 | 4600 | 5500 | 5000 |
| XSG6 | 5500 | 6550 | 6000 |
| XSG8 | 6000 | 7100 | 5600 |
| XSG10 | 6500 | 8200 | 6700 |
| XSG12 | 7000 | 8900 | 7000 |
| XSG14 | 7800 | 10500 | 8500 |
| XSG16 | 8500 | 14500 | 11000 |
Parâmetros técnicos da máquina de secagem por evaporação instantânea
| Modelo de item | Diâmetro interno da máquina principal (mm) | Volume de manipulação de ar (m3/h) | Capacidade evaporada (Kg/h) | Energia equipada (kW) | Altura máxima (m) | Área de cobertura (m2) |
| XSG4 | 400 | 1600-2500 | 40-60 | 25 | 4.6 | 19 |
| XSG6 | 600 | 4000-5500 | 80-120 | 37 | 5.5 | 26 |
| XSG8 | 800 | 6000-7500 | 150-240 | 48 | 6 | 34 |
| XSG10 | 1000 | 10000-12000 | 250-400 | 75 | 6.5 | 45 |
| XSG12 | 1200 | 15500-18000 | 450-610 | 85 | 7.5 | 58 |
| XSG14 | 1400 | 20000-24000 | 650-750 | 98 | 8 | 76 |
| XSG16 | 1600 | 25000-30000 | 800-1000 | 135 | 8.5 | 110 |
Nota
1. O valor evaporado da umidade é calculado quando a temperatura de entrada for 200℃ e a temperatura de saída for de 80℃.
2. Modelos customizados da máquina de secagem por evaporação instantânea também se encontram disponíveis.
3. A área ocupada irá variar baseada em diferentes ambientes.
Amostra seca
| Categoria | Matérias-prima | Conteúdo inicial de água | Conteúdo final de água | |
| (%) | (%) | |||
| Aba inorgânica | Harlsalz | Estearato de bário | 40 | 0.5 |
| Estearato de zinco | 40 | 0.5 | ||
| Estearato de alumínio | 45 | 2 | ||
| Estearato de cálcio | 40 | 2.5 | ||
| Estearato de magnésio | 45 | 5 | ||
| Carbonato | Carbonato de manganês | 20 | 1 | |
| Carbonato de cério | 31 | 17 (inclui água cristalizada) | ||
| Carbonato de zinco | 80 | 0.5 | ||
| Carbonato de cálcio | 30 | 0.2 | ||
| Óxido | Zirconia | 80 | 1 | |
| Óxido de ferro vermelho | 60 | 1 | ||
| Óxido de zinco | 60 | 1 | ||
| Clorato | Hidróxido de alumínio | 55 | 1 | |
| Cloreto cuproso | 45 | 1 | ||
| Sulfato | Dióxido de sódio isocianurato | 25 | 1 | |
| Sulfato de cálcio | 35 | 3 | ||
| Pirossulfito de sódio | 20 | 0.2 | ||
| Outro | Sílica | 85 | 0.5 | |
| Sulfato de chumbo | 25 | 0.5 | ||
| Metasilicato de sódio | 47.5 | 42.4 | ||
| Matérias primas químicas inorgânicas | Acetato de fentina | 25 | 1 | |
| Ailina acetoacetil | 15 | 0.2 | ||
| Pó de branquamento de alto teste | 35-40 | 3 | ||
| Agro-químicos | Padan | 20 | 1 | |
| Monosultap | 20 | 1 | ||
| ABamectina | 80 | 15 | ||
| Pyridaben | 25 | 0.5 | ||
| Paclobutrazol | 26 | 1 | ||
| Metomil | 15 | 2 | ||
| Quizalofope-p-etil | 58 | 1 | ||
| Mancozebe | 30 | 1 | ||
| Triciclazol | 28 | 1 | ||
| Atrazine | 40 | 1 | ||
| Pigmento corante | Azul rápido | 35 | 0.5 | |
| Amarelo reativo | 60 | 3 | ||
| Bordeaux sulfúrico | 60 | 3 | ||
| Amarelo básico | 40 | 0.3 | ||
| Preto Din | 45 | 1 | ||
| Azul sulfúrico | 60 | 3 | ||
| Amarelo de cromo de chumbo | 40 | 0.1 | ||
| Catalisador | Catalisador | 50 | 1 | |
| Tipo de peneira molecular | 24 | 2 | ||
| Acelerador de borracha | 20-30 | 0.3 | ||
| Farmacêutico | Guanosina | 40 | 1 | |
| Núcleotídeo, pó de levedura vita | 40 | 6 | ||
| Monensina | 30 | 3 | ||
Características da máquina de secagem por evaporação instantânea
1. Há diversos tipos de equipamento de alimentação disponíveis para escolha para uso em alimentção contínua ou estática.
2. No fundo da máquina de secagem por evaporação instantânea, a matéria prima não entra em contato com a superfície de aquecimento diretamente, assim, os processos de carbonização ou mudança de coloração são evitados.
3. Há o equipamento de pressão de ar e equipamento de resfriamento de eixo, assim a vida útil do maquinário se torna extendida.
4. Equipamento especial é empregado para aumentar a quantidade de ar quente.
5. Existem peças de rotação de fluxo dentro da câmara de secagem da máquina de secagem por evaporação instantânea. Elas são utilizadas para controlar a umidade e granulação da matéria prima.
6. Alta eficiência é atingida devido à velocidade da circulação dentro da câmara de secagem.
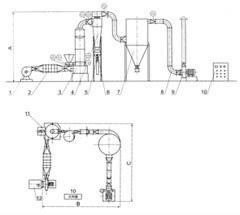
Fluxograma de processos
| 1. Ventilador 2. Radiador do vapor 3. Máquina principal 4. Separador ciclone 5. Válvula de descarga 6. Martelo pneumático |
7. Espanador de inflagem 8. Sistema de tubulação 9. Ventilador 10. Gabinete de controle 11. Alimentador 12. Filtro de ar |

